规格型号:0.7——4.2MW
热效率:85%
适用燃料:生物质颗粒、木块、秸秆
应用范围:供暖,集中供热、用热水
产品介绍
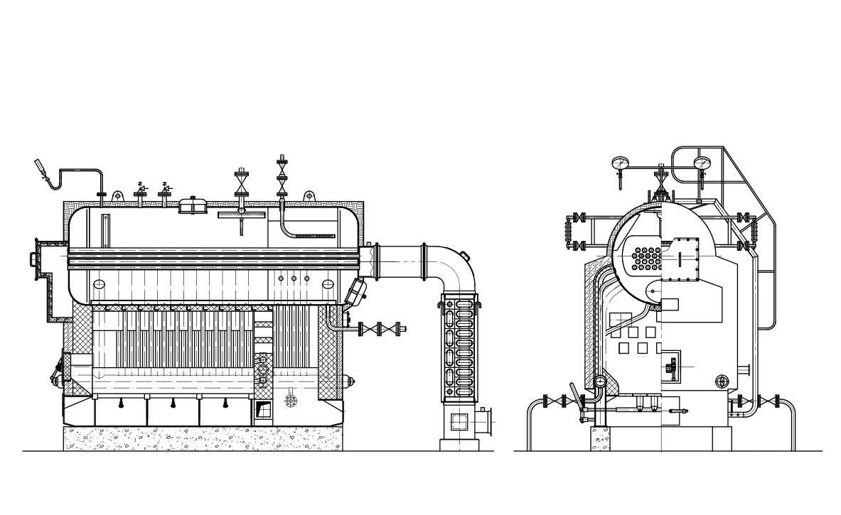
CDZH生物质卧式热水锅炉,是一种卧式三回程水火管混合式锅炉,在锅筒内布置一束螺纹烟管。炉膛左右二侧装有光管水冷墙。采用轻型活动炉排采用人工加料,配有鼓风机、引风机进行机械通风。该炉前后拱采用新型的节能技术炉拱。燃料从料斗落到炉排上,进入炉膛燃烧后,火焰经过后拱折射向上通过本体两侧燃烬室折向转到前烟箱,再由前烟箱折回锅内管束,通过后烟箱进入省煤器,然后由引风机抽引通过烟道至烟囱排向大气。
性能优势
1、锅炉型式为卧式快装锅炉、工质自然循环。
该锅炉换热系统由锅筒、左右集箱、水冷壁组成,主要受热面有炉膛水冷壁,部分锅筒和锅筒内对流管束。
2、设计性能**:
该锅炉主要受热面管采用20#低中压锅炉用无缝钢管制成,锅筒采用锅炉专用钢板制成。左右集箱采用无缝钢管制成。
3、锅炉炉拱采用耐火混凝土捣制而成。后拱低而长,因此燃烧良好,两翼烟道和侧墙砖采用耐火材料烧结砖。锅炉前墙、后墙采用通用耐火砖。
4、炉排配风合理,燃烧室较大,煤种适用性强。适应各类烟煤或无烟煤、混合煤。燃烧充分。由于高温烟气首**入沉降室,再由两侧进入两翼烟道、前烟箱,因而消烟除尘效果好。
5、水循环简单,受压部件结构合理,在保证水质的情下,完全可以安全运行。
6、燃烧设备为快装炉排,燃烧设备在厂内制造安装完毕,运输至工地后直接安装在地基上即可。具有结构合理、紧凑,钢材耗量低,使锅炉性能、重量、结构尺寸与国内同容量产品相比具有明显的**性。
7、节能环保:采用*新气化燃烧技术,设置了**的气化旋转燃烧室,内置旋流二次配风,使燃料燃烧更加充分。
8、并采用**传热元件-螺纹烟管,配以合理的烟气流速,使锅炉热效率更高。热效率高达85%以上。
9、锅炉采用国家推广的绿色可再生生物质木质颗粒燃料,CO2达到零排放,烟尘排放浓度小于50mg/m3,烟气度黑小于林格曼I级,各项指标均达到国家一类地区环保标准。
10、运行费用低:由于锅炉本身所使用的燃料木质生物质颗粒是属于国家支持推广的新型环保燃料,是一种可再生资源。具有热值高,成本低,来源广泛的特点。其运行成本仅是电锅炉的四分之一,燃油(气)锅炉的二分之一以下。
11、自动化程度高:数字集成控制器,可按用户设定自动控制器燃烧工况,操作简单方便,自动点火,自动上料,自动清灰,燃气锅炉操作同等方便。
12、安全:采用高标准,高质量的辅机,附件和自动控制设备,保证锅炉安全、稳定运行热力足。
13、外观新颖:锅炉设计美观大方
技术参数
| 规格型号 | 额定热功率(MW) | 额定工作压力(MPa) | 出水/回水温度(℃) | 锅炉热效率(%) | 炉排面积(㎡) | 设计燃料 | 受热面积(㎡) | 锅炉自重(T) | 供暖面积(㎡) | 外形尺寸长×宽×高(mm) |
| CDZH0.7-85/60-T | 0.7 | 0 | 85/60 | 85% | 1.85 | 生物质颗粒、秸秆、木块 | 31 | 9.5 | 6000 | 3500×1700×2600 |
| CDZH1.4-85/60-T | 1.4 | 0 | 85/60 | 85% | 2.8-3.1 | 生物质颗粒、秸秆、木块 | 69.5 | 13 | 12000 | 4100×2200×3200 |
| CDZH2.1-85/60-T | 2.1 | 0 | 85/60 | 85% | 3.95 | 生物质颗粒、秸秆、木块 | 92.4 | 19 | 18000 | 4600×2200×3300 |
| CDZH2.8-85/60-T | 2.8 | 0 | 85/60 | 85% | 4.6 | 生物质颗粒、秸秆、木块 | 119 | 22.6 | 24000 | 2800×1700×2500 |
| CDZH3.5-85/60-T | 3.5 | 0 | 85/60 | 85% | 5.87 | 生物质颗粒、秸秆、木块 | 124.65 | 28 | 30000 | 4800×2400×3400 |
| CDZH4.2-85/60-T | 4.2 | 0 | 85/60 | 85% | 7.3 | 生物质颗粒、秸秆、木块 | 136.3 | 32 | 36000 | 5400×2400×3500 |
工作原理

